Kış Bahçesi

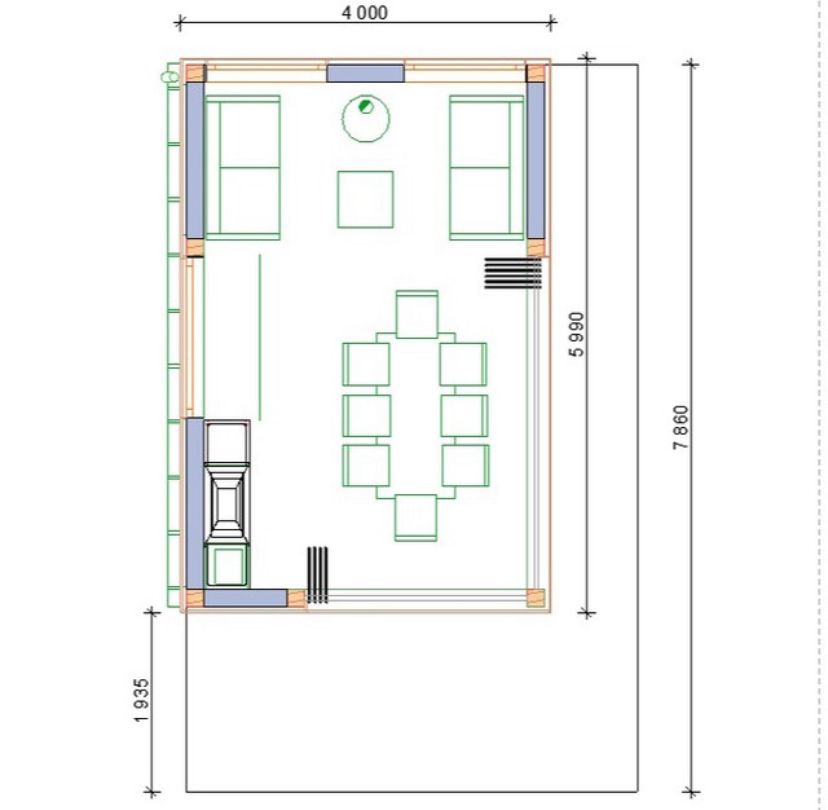
ÖLÇÜLER 
Uzunluk : 5 metre
Genişlik : 3 metre
Yükseklik : 2,60cm ön kısım Arka kısım 2,40 cm
Alt zemin iki yana çıkma 1 metre
Alt zemin teraslar ile 24 m2
KULLANILAN MALZEMELER VE DİĞER PLANLAR
* Yapı iskeleti Çelik konstrüksiyon 40 x 40 2,5 mm 40 x 80 2,5 mm
* Yapının iç ve dış kaplaması İthal Rus( çam )lambiri 1,4 mm , 1,8 mm arasında
kalınlığı
* Çatı kaplaması Trapez saç kaplama ( Antrasit renk )
* Bir adet Çatı olduğu bir âdet yağmur inişi
* Eletirik tesisatı 3 x 2,5 Antikton kablo pirizler , 2x 1,5 aydınlatma kablosu
* İç Aydınlatma 8 adet spot aydınlatma
* Alt zemin Ahşap Rabıta kaplama 1,88 mm
* Isı yalıtımı Taş yünü çatı ve yan duvarlar
* Yapının arka kısmında kalan 50 x 120 cm 2 adet pvc doğrama ısı cam
* Ön kısımdaki camlar Füme renk damperli katlanır cam
* Dış alan Teraslar zemin Deck Kaplama ( Antrasit renk pvc kompozit)
* Bir adet 180 cm Mutfak Antrasit renk mdf
* Bir adet kömürlü frınlı barbekü
* Bir adet Evye
* Ürün teslimi 15 iş günü
* Ödeme Ürün tesliminde kapı teslimi olacaktır.